Перейти к содержимому

Кухня-гостиная сердце дома 180 м²

Строим место,
в котором хочется жить.

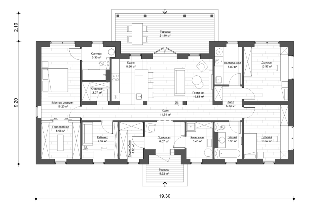
Основные характеристики дома

  • Гостиная с открытой кухней
  • Мастер-спальня с гардеробной
  • Две дополнительные спальни
  • Отдельный кабинет
  • Две ванные комнаты
  • Отдельная постирочная

Стоимость проекта:

от 700 BYN

Стоимость строительства:

от 315 000 BYN ≈90 000 USD
В рассрочку от 3 000 BYN в месяц
Кратко о доме

Представляем вашему вниманию стильный и функциональный одноэтажный дом площадью 180 квадратных метров, идеально подходящий для комфортной жизни современной семьи. Дом спроектирован с учётом всех современных требований: просторные комнаты, удобная планировка и качественные отделочные материалы.

Дом идеально подходит для семьи с детьми. Для родителей, которые «за» сепарирование и взросление наших детей. Именно поэтому мы разделили родительский много—функциональный блок с кабинетом, гардеробной, душевой (с возможностью установить хамам) от активного, яркого и самое главное самостоятельного детского блока. Мы сохранили сердце дома — общую зону приема пищи и досуга с камином, винилом, кинопрокатами и выходом в зону барбекю.

Кухня-гостиная сердце дома 180 м²

График строительства Вашего дома согласно нашему проекту

Фундамент + закрытый контур

  • Фундамент 
  • Стены Кереамзитобетон 400мм
  • Кровля металопрофиль
  • Теплое перекрытие 250мм — керамзитом 
  • Окна и временная дверь 
Теплый закрытый контур

Фундамент + закрытый контур +

  • Черновая электрика
  • Оштукатуренные стены
  • Смонтирована плитки в котельной 
  • Разведено отопление, водоснабжение, канализация
  • Чистовая стяжка
  • Утеплен и в «черновую» отделан фасад
  • Теплая отмостка 
Чистовая отделка внутри и снаружи

Фундамент + закрытый контур +

Теплый закрытый контур +

Стоимость указана "от" и рассчитывается индивидуально.

Фундамент + закрытый контур
Фундамент + закрытый контур

  • Фундамент 
  • Стены Кереамзитобетон 400мм
  • Кровля металопрофиль
  • Теплое перекрытие 250мм — керамзитом 
  • Окна и временная дверь 
Теплый закрытый контур
Теплый закрытый контур

Фундамент + закрытый контур +

  • Черновая электрика
  • Оштукатуренные стены
  • Смонтирована плитки в котельной 
  • Разведено отопление, водоснабжение, канализация
  • Чистовая стяжка
  • Утеплен и в «черновую» отделан фасад
  • Теплая отмостка 
Чистовая отделка внутри и снаружи
Чистовая отделка внутри и снаружи

Фундамент + закрытый контур +

Теплый закрытый контур +

Стоимость указана "от" и рассчитывается индивидуально.

Энергоэффективность

Совместив строительный и проектный опыт — мы достигаем минимального уровня теплопотерь без доп затрат — что экономит средства на их возмещение.

Безопасность

Мы применяем только безопасные решения проектируя все конструкции, особенное внимание к фундаменту, кровле, электрике, системе отопления и водоснабжения.

Комфорт, уют и функциональность

Мы передали свое видение одного из стилей жизни
на небольшой площади. Ведь не площадь важна, а атмосфера в доме.

Заказать проект

  • 700 BYN
    Архитектурный проект
    Архитектурный проект – комплекс строительных документов, представляющий собой реализацию концепции будущего строения, его внешнего и внутреннего облика.
    Кухня-гостиная сердце дома 180 м²
  • + 1 400 BYN
    Строительный проект

    Содержит детальную информацию о технологии и этапах строительства дома. Состоит из конструктивных чертежей, узлов и деталей, ведомостей и спецификаций материалов для закупки.

    Строительный проект
  • + 600 BYN
    Проект инженерных сетей
    • Системы водоснабжения и канализации
    • Схема разводки водоснабжения и канализации.
    • Схемы отопления и вентиляции
    • Схема разводки отопления, вентиляции, обвязка котла.
    Проект инженерных сетей
  • + 500 BYN
    Генеральный план

    Генеральный план строений включает схематические обозначения входов и подъездов, компоненты благоустройства, озеленения, транспортных путей, путей проходов.

    Генеральный план
  • + 2 000 BYN
    Типовой дизайн

    Типовой дизайн проект дома позволяет  оптимизировать денежные средства, и предусмотреть заранее все функциональные и технические особенности планировки вашего строения.

    Типовой дизайн
  • + 8 000 BYN
    Индивидуальный дизайн

    Концепция будущего интерьера с подробной технической информацией по его реализации, в соответствии с индивидуальными требованиями клиента.

    Индивидуальный дизайн

Основные характеристики дома:

  • Гостиная с открытой кухней и обеденной зоной: Просторная и светлая гостиная является центром дома, где приятно проводить время с семьей и друзьями. Открытая кухня, гармонично соединяется с обеденной зоной. Из гостиной есть выход на террасу, где можно наслаждаться свежим воздухом и отдыхать на природе.
  • Мастер-спальня с гардеробной: Мастер-спальня — это отдельное уединённое пространство с просторной гардеробной. Это место для полного отдыха и комфорта. Гардеробная рядом с спальней позволяет удобно хранить вещи, создавая порядок и организованность.
  • Две дополнительные спальни: Эти комнаты идеально подойдут для детей, гостей или могут быть использованы как рабочие кабинеты. Все спальни имеют достаточное пространство и естественное освещение, что делает их удобными и комфортными.
  • Отдельный кабинет: В доме предусмотрен отдельный кабинет, который идеально подходит для работы из дома или для занятия хобби. Это место обеспечит вам тишину и уединение для продуктивной работы.
  • Кладовая рядом с кухней: Для удобства хранения продуктов и бытовых принадлежностей рядом с кухней расположена дополнительная кладовая. Это позволяет поддерживать порядок в доме и экономить место в других помещениях.
  • Две ванные комнаты: В доме предусмотрены две ванные комнаты. Одна из них примыкает к мастер-спальне, а другая находится рядом с двумя дополнительными спальнями. Это повышает удобство и комфорт для всей семьи.
  • Прачечная и котельная: Дом включает отдельную прачечную для удобства в быту, а также котельную, в которой собрано сердце дома. Практичная и функциональная планировка позволяет легко перемещаться по дому.

Преимущества одноэтажного дома:

  • Энергоэффективность: Современные строительные материалы и качественное утепление обеспечивают отличную теплоизоляцию и помогают снизить расходы на отопление.
  • Комфорт и удобство: Просторные и светлые комнаты создают атмосферу уюта и комфорта для всех членов семьи.
  • Функциональная планировка: Продуманная планировка делает дом удобным для повседневной жизни, а отдельный кабинет и кладовая добавляют дополнительную функциональность.

Дом идеально подходит для семьи с детьми. Для родителей, которые «за» сепарирование и взросление наших детей. Именно поэтому мы разделили родительский много—функциональный блок с кабинетом, гардеробной, душевой (с возможностью установить хамам) от активного, яркого и самое главное самостоятельного детского блока. Мы сохранили сердце дома — общую зону приема пищи и досуга с камином, винилом, кинопрокатами и выходом в зону барбекю.