Перейти к содержимому

Милый дом 6, мастер-спальня 115м2

Строим место,
в котором хочется жить.

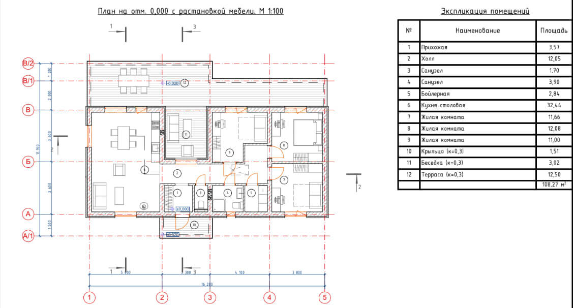
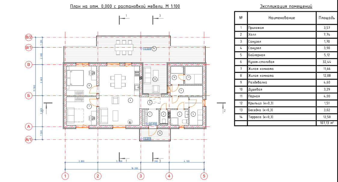
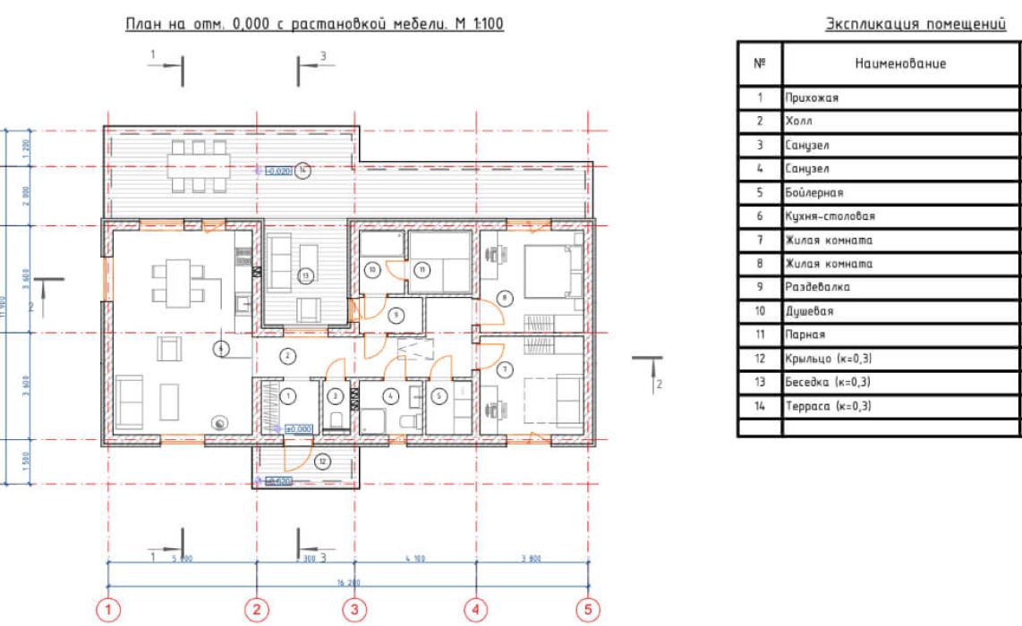
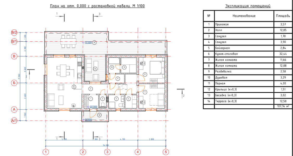
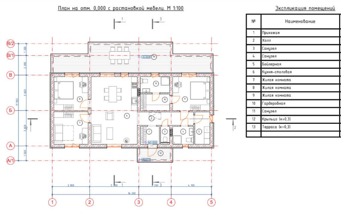
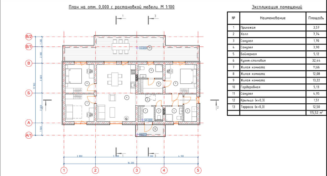
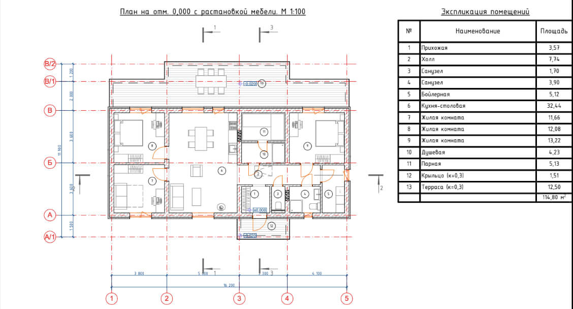
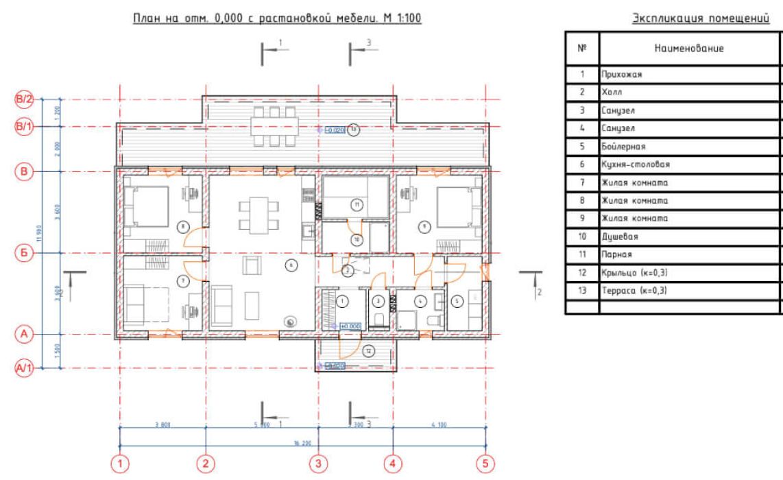
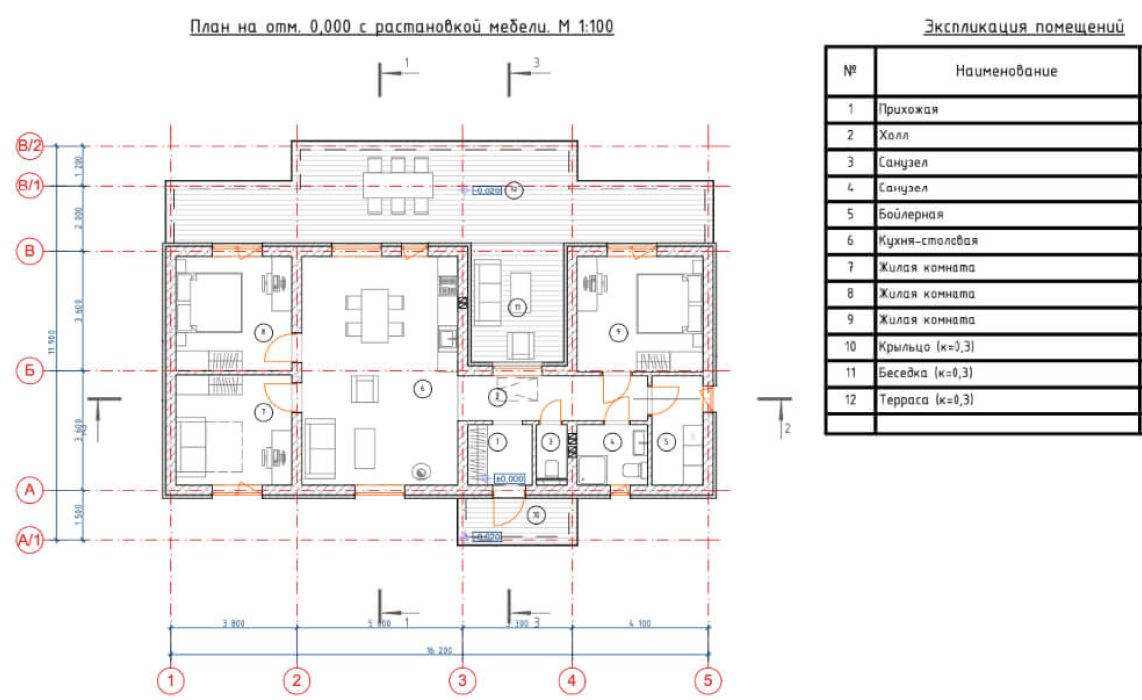
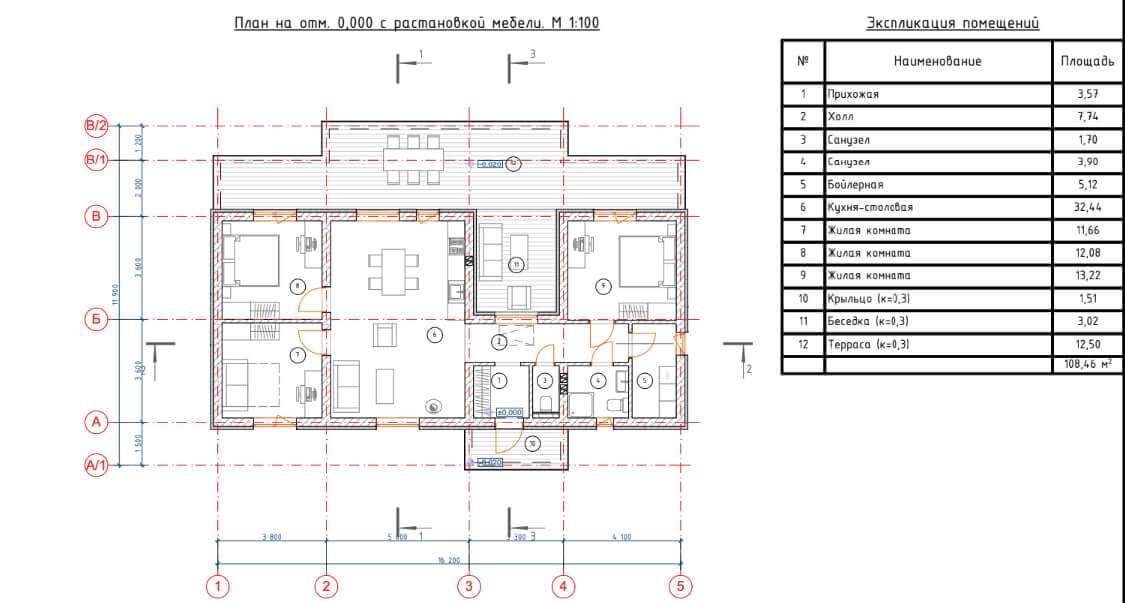
Основные характеристики дома

  • Гостиная с открытой кухней
  • Мастер-спальня с гардеробной
  • Две дополнительные спальни
  • Отдельный кабинет
  • Кладовая рядом с кухней
  • Две ванные комнаты

Стоимость проекта:

от 700 BYN

Стоимость строительства:

от 175 000 BYN ≈50 000 USD
В рассрочку от 3 000 BYN в месяц
Кратко о доме

Над созданием данного этого проекта работала команда
дизайнеров, архитекторов, конструкторов,
проектировщиков, инженеров, юристов, финансистов,
визуализаторов и айти-специалистов. Мы создали
продуманный до мелочей и функциональный дом, который
предугадывает все желания будущего владельца.

Архитектура и дизайн разработаны таким образом, что
каждый метр пространства эффективен и выполняет свою
функцию.

Мы подумали о ваших детях - маленьких и взрослых, о
вас, о вашем спокойствии и единении, о ваших родителях
и ваших четвероногих членах семьи.

Мы проработали различные сценарии жизни для малышей
и взрослых, для любителей бани и купели, для тех, кто
хочет совмещать работу и отдых на природе, а также для
бабушек и дедушек, которые хотят чаще видеть своих
внуков.

Проект, который мы представляем вам, это не просто дом,
а место, где рождаются новые эмоции и воспоминания.

Милый дом 6, мастер-спальня 115м2
Энергоэффективность

Совместив строительный и проектный опыт — мы достигаем минимального уровня теплопотерь без доп затрат — что экономит средства на их возмещение.

Безопасность

Мы применяем только безопасные решения проектируя все конструкции, особенное внимание к фундаменту, кровле, электрике, системе отопления и водоснабжения.

Комфорт, уют и функциональность

Мы передали свое видение одного из стилей жизни
на небольшой площади. Ведь не площадь важна, а атмосфера в доме.

Заказать проект

  • 700 BYN
    Архитектурный проект
    Милый дом 6, мастер-спальня 115м2
  • + 1 400 BYN
    Строительный проект

    Содержит детальную информацию о технологии и этапах строительства дома. Состоит из конструктивных чертежей, узлов и деталей, ведомостей и спецификаций материалов для закупки.

    Строительный проект
  • + 600 BYN
    Проект инженерных сетей
    • Системы водоснабжения и канализации
    • Схема разводки водоснабжения и канализации.
    • Схемы отопления и вентиляции
    • Схема разводки отопления, вентиляции, обвязка котла.
    Проект инженерных сетей
  • + 500 BYN
    Генеральный план

    Генеральный план строений включает схематические обозначения входов и подъездов, компоненты благоустройства, озеленения, транспортных путей, путей проходов.

    Генеральный план
  • + 2 000 BYN
    Типовой дизайн

    Типовой дизайн проект дома позволяет  оптимизировать денежные средства, и предусмотреть заранее все функциональные и технические особенности планировки вашего строения.

    Типовой дизайн
  • + 8 000 BYN
    Индивидуальный дизайн

    Концепция будущего интерьера с подробной технической информацией по его реализации, в соответствии с индивидуальными требованиями клиента.

    Индивидуальный дизайн